04 79 83 21 23
21 Le Forum Saint Antoine,
73300 Saint-Jean-De-Maurienne

NOUVEAU ! LES JARDINS DE BABYLONE PROGRAMME NEUF AU COEUR DE SAINT JEAN DE MAURIENNE Les Type 3 très ensoleil


< Retour

Partager sur

gallery loader

Appartement 64 m² - 3 Pièces - Saint-Jean-De-Maurienne 239 000


Description de l'offre Ref 1799 3


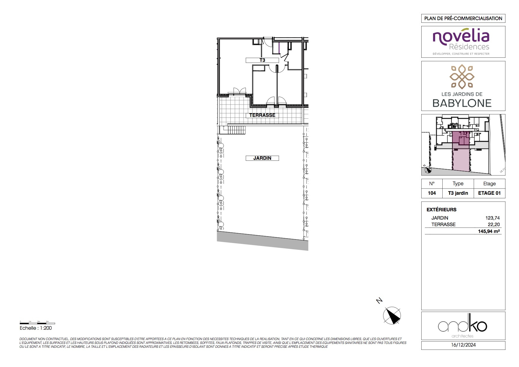
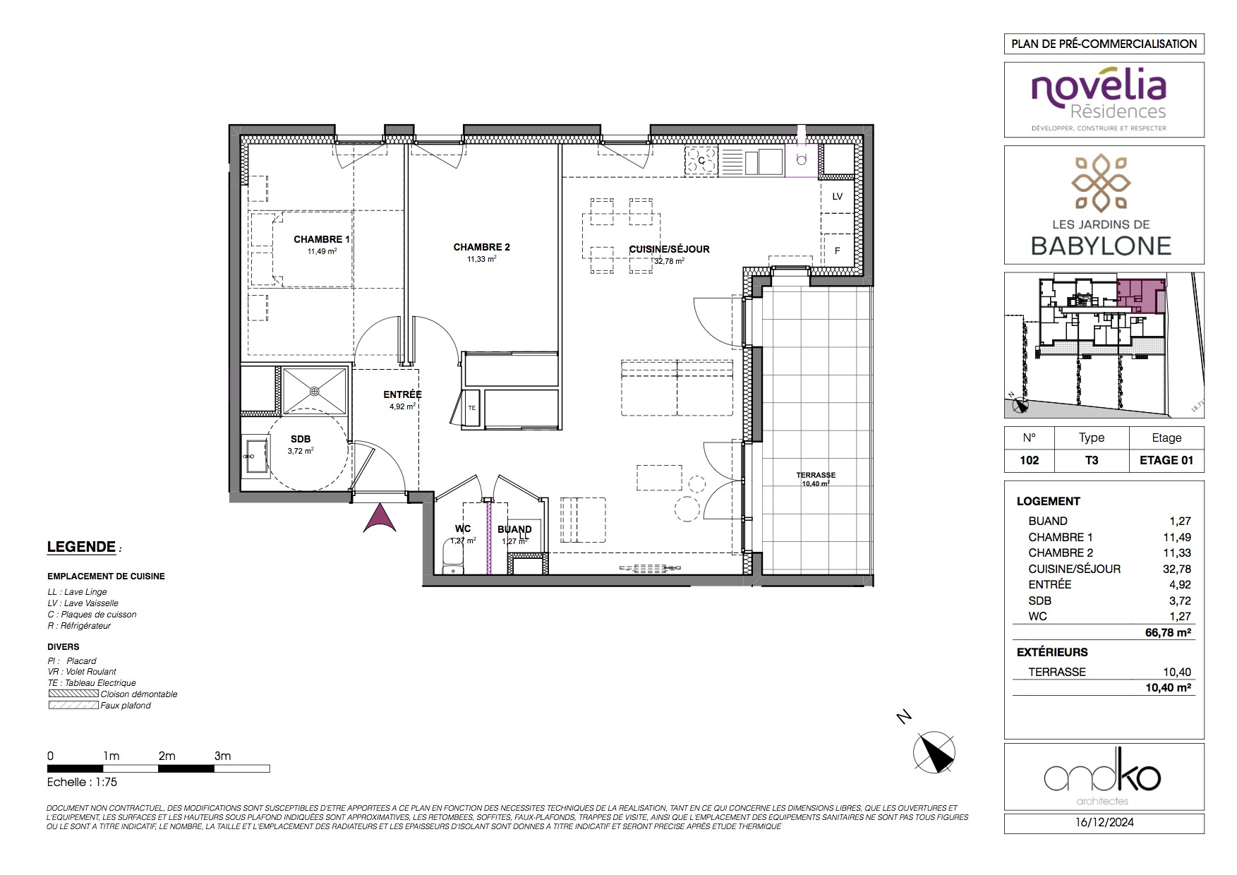
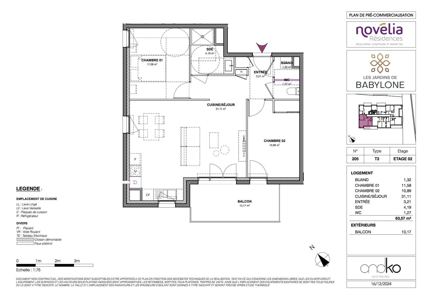
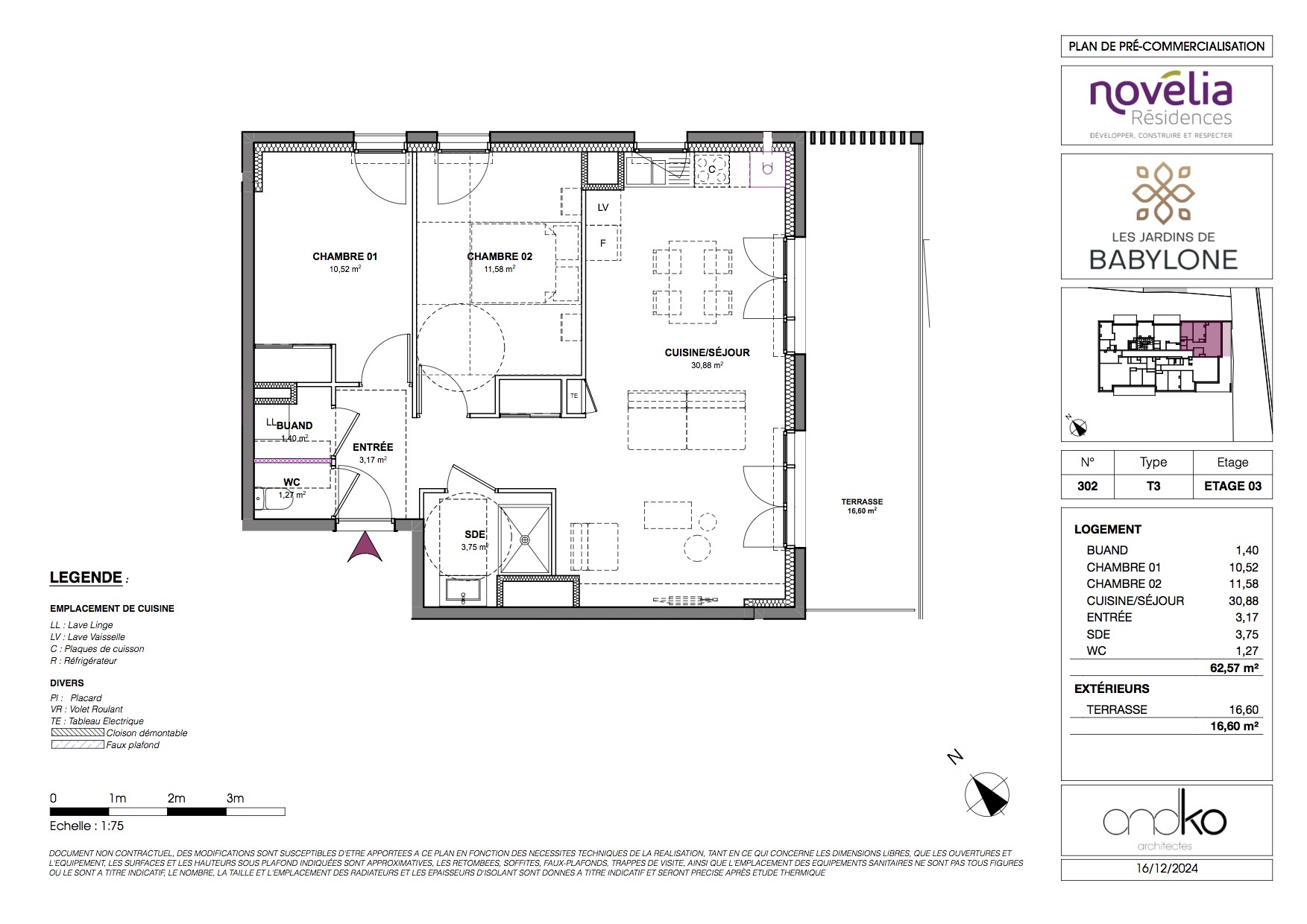
NOUVEAU ! LES JARDINS DE BABYLONE  PROGRAMME NEUF A SAINT JEAN DE MAURIENNE Situé en coeur de ville, dans un quartier calme, ensoleillé et à proximité de tous les commerces et services. Venez découvrir ce très beau Programme neuf de 17 appartements de standing au sein d'une petite résidence de 3 étages équipée d'un ascenseur, d'un vidéophone et offrant une excellente performance énergétique. Chaque appartement est équipé de volets roulants électriques et d'un chauffage individuel au gaz par radiateurs pour un confort optimal. Les appartements de Type 3 très ensoleillés, d'une surface habitable entre 62 et 67 m2, disposent en plus, d'un grand balcon ou d'une terrasse avec une mention spécial pour le dernier appartement en rez-de-jardin qui bénéficie d'une terrasse de 22 m2 et d'un jardin clos et privé de 123 m2 ! La pièce à vivre carrelée avec cuisine ouverte est très spacieuse et dotée de larges baies vitrées qui s'ouvrent sur les balcons et terrasses. Les 2 grandes chambres en parquet stratifié bénéficient de placards avec portes coulissantes avec, pour certaines, un accès sur les balcons et terrasses. La salle de douche est équipée. De plus, vous avez la possibilité d'acquérir un garage fermé ou un parking privé extérieur. Les frais de notaire sont réduits à 3%. La livraison qui aura lieu à l'automne 2027 vous permet d'échelonner le règlement au fur et à mesure de l'avancement des travaux. Les T3 sont à réserver à partir de 239.000 euros, prix Promoteur N'hésitez pas à vous renseigner au 06.74.78.91.56

Diagnostics de performance énergétique


DPE
DPE
DPE ANCIENNE VERSION

Descriptif du bien


Code postal 73300


Surface habitable (m²) 64 m²


Nombre de chambre(s) 2


Nombre de pièces 3


Quartier centre ville


Prix de vente honoraires TTC inclus 239 000 €


Cette annonce vous intéresse ?


* Champs obligatoires

* : Les informations recueillies sur ce formulaire sont enregistrées dans un fichier informatisé par La Boite Immo agissant comme Sous-traitant du traitement pour la gestion de la clientèle/prospects de l'Agence / du Réseau qui reste Responsable du Traitement de vos Données personnelles. La base légale du traitement repose sur l'intérêt légitime de l'Agence / du Réseau. Elles sont conservées jusqu'à demande de suppression et sont destinées à l'Agence / au Réseau. Conformément à la loi « informatique et libertés », vous disposez des droits d’accès, de rectification, d’effacement, d’opposition, de limitation et de portabilité de vos données. Vous pouvez retirer votre consentement à tout moment en contactant directement l’Agence / Le Réseau. Consultez le site https://cnil.fr/fr pour plus d’informations sur vos droits. Si vous estimez, après avoir contacté l'Agence / le Réseau, que vos droits « Informatique et Libertés » ne sont pas respectés, vous pouvez adresser une réclamation à la CNIL. Nous vous informons de l’existence de la liste d'opposition au démarchage téléphonique « Bloctel », sur laquelle vous pouvez vous inscrire ici : https://www.bloctel.gouv.fr Dans le cadre de la protection des Données personnelles, nous vous invitons à ne pas inscrire de Données sensibles dans le champ de saisie libre.
Ce site est protégé par reCAPTCHA, les Politiques de Confidentialité et les Conditions d'Utilisation de Google s'appliquent.

autres annonces immobilières correspondant à votre recherche

Les biens similaires pour : Vente Appartement Saint-Jean-de-Maurienne (73300)